Die Suche nach einer möglichst einfachen Form für ein komplexes Programm bestimmt das Konzept für die Schule. Der Gegensatz zwischen Auenlandschaft und Artefakt wird deutlich herausgearbeitet, indem das großmaßstäbliche Gebäude eindeutig und zugleich respektvoll im weiträumigen Landschaftsraum positioniert wird.
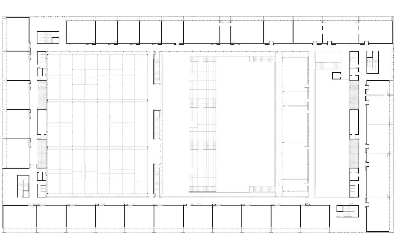
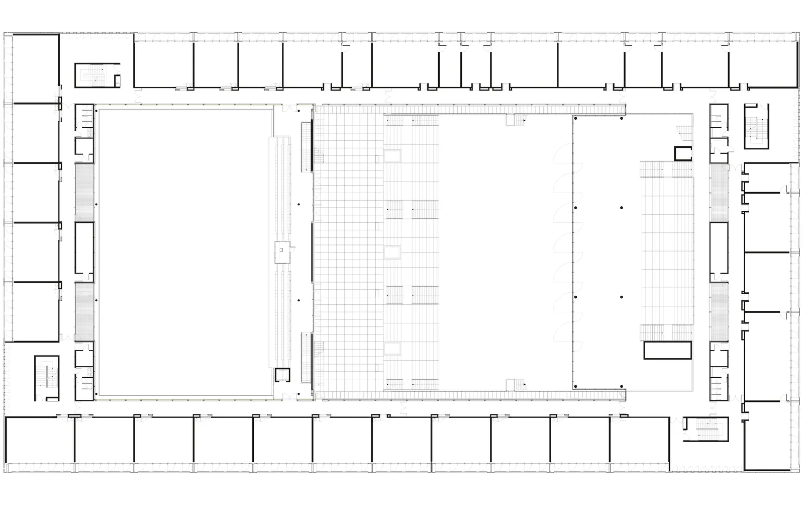
Typologisch entspricht die Schule mit ihrer konzentrierten, zum innenliegenden Freiraum orientierten Struktur einem Kloster. Der Typus wandelt sich jedoch durch das Anheben des zweigeschossigen Baukörpers als aufgeständertes Rechteck sowie durch das Herausbilden des Pausenhofs als kommunikatives Zentrum mit einer breiten Sitztreppe.
Diese findet ihr Pendant im Inneren in der Pausenhalle, die sich in der gesamten Breite mittels großformatiger Drehflügeltüren zum Hof hin schwellenlos öffnen lässt.
Die Form folgt dem Ziel, für die Schüler einen Ort der Identifikation und Integration zu schaffen, der den Sinn für Gemeinschaft stärkt. Die Fassade zum Pausenhof ist glattflächig in einem alternierenden Rhythmus aus opaken Farbflächen und farbigen und klaren Gläsern.
Die im äußeren Rahmen liegenden Klassen- und Fachräume verfügen über eine hölzerne Loggia mit nach außen aufschlagbaren Fenstertüren. Funktional erweitern sich dadurch die Klassenräume in den Außenraum. Grundprinzip ist, ein Maximum an natürlichem Tageslicht in das Gebäude einfließen zu lassen – durch die massive Bauweise werden die Temperaturen gebrochen und ein träges, kontinuierliches Raumklima erzeugt. Alternative Energiekonzeptionen ermöglichen einen geringen Verbrauch im Unterhalt.
Realisierung:
Wettbewerb:
Fachplaner:
Tischner H. + Pache K., Ingenieurbüro Baustatik, Dachau (Tragwerksplanung)
realgrün Landschaftsarchitekten mbH, München (Freiflächenplanung)
Transsolar Energietechnik, München (Energieberatung)
Ingenieurbüro knab, München (Technische Gebäudeausrüstung)
Ingenieurbüro Prof. Waubke + Kissinger, Bondruck (Fassade)
Klingsohr Brandschutz, Ottenhofen (Brandschutz)
Fotografie:
Florian Holzherr
Jens Passoth
Stefan Müller-Naumann
2002 European Union Prize for Contemporary Architecture, Mies van der Rohe Award, Nominierung