Südwestmetall, Reutlingen

Realisiert 2002
Wettbewerb 1999, 1. Preis
Ort: Reutlingen
Themen: Büro, Industrie
Bauherr: Südwestmetall Verband der Metall- und Elektroindustrie Baden-Württemberg e.V.
Bruttogrundfläche: 4.200 m²
Leistungsphasen: LPH 1–7, 9

Der Entwurf für den Neubau der Verwaltungs- und Schulungsräume des Arbeitsgeberverbandes der Metallindustrie trifft auf eine historische Stadtkörnung aus herrschaftlichen Häusern und typischen Stadtstrukturen der Gründerzeit mit Villa, Garten und Zaun. Der Neubau referenziert und irritiert zugleich, greift Vertrautes auf und verfremdet es in Konstruktion und Material.

Lageplan

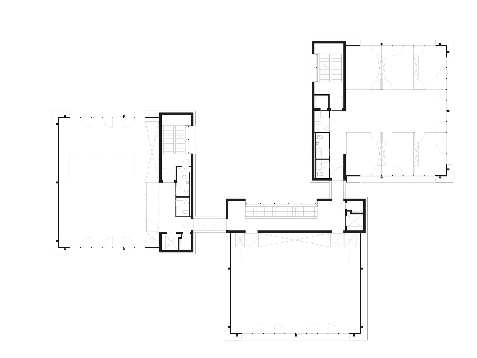
Durch die Dreiteilung des Gebäudeensembles entspricht das Konzept den Programmvorgaben, wird jedoch formal passend in die Altstadt Reutlingens eingebunden: Jedes der drei Gebäude hat die Urform eines Hauses mit Satteldach und wirkt damit harmonisch im Stadtbild.

Die Assoziation einer „Stadtvilla“ wird jedoch durch die Edelstahlfassade gebrochen, es entsteht der Eindruck von drei „Edelstahlmonolithen“. Simple Form und verfremdete Materialität sorgen für spannungsreiche Dialektik.

Erdgeschoss
Obergeschoss 02
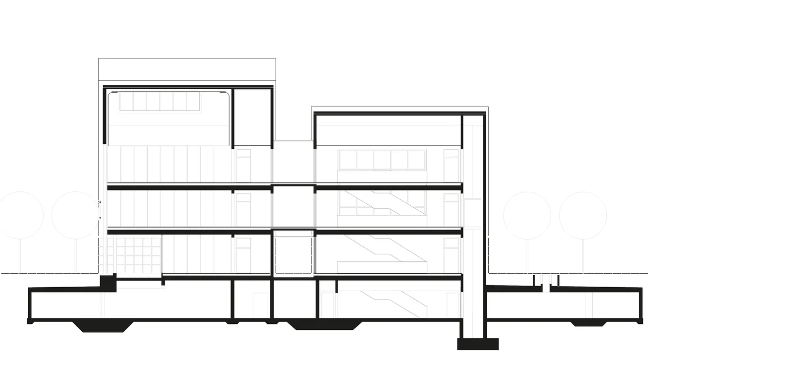
Schnitt

Ein ornamentierter, lichtdurchlässiger Gebäudesockel aus Metallplatten stellt die Referenz zum fehlenden Gartenzaun her, nimmt das Motiv von Blattwerk vor Fenstern auf und zeigt zugleich die vielfältigen Erscheinungsformen des Materials Metall. Das Design setzt Bezüge zum Jugendstil mit floralen Mustern und Ornamenten – ein Kontrast zum industriellen Material.

Zugleich entsteht eine Irritation in der Anordnung: über leichten, lichtdurchlässigen Sockeln stehen die schweren geschlossenen Monolithen. Der Entwurf spiegelt konsequent die Arbeit mit Gegensätzen und paradoxen Begriffen wider.

Realisierung:

von Meier, Helgo (Projektleitung)
Hertel, Angela
Mutzenbach, Bettina
Rafailidis, Georg
Rath, Susanne
Ritter, Olga

Fachplaner:

realgrün Landschaftsarchitekten, München (Landschaftsarchitektur)
Werner Sobek Ingenieure, Stuttgart (Tragwerksplanung)
Transsolar Energietechnik, München (Energieberatung)
Horstmann + Berger, Altensteig (Bauphysik)
Schreiber Beratende Ingenieure, Ulm (Technische Gebäudeausrüstung)
Ingenieurbüro Schwarz, Stuttgart (Elektrotechnische Beratung)
Allmann Roswitha, Allmann Design, München (Konzeption/Grafik Metallplatten)

Fotografie:

Florian Holzherr
Jens Passoth

 

2006  Hugo-Häring-Preis
2005  DETAIL Preis
2004  LEAF Award
2004  Preis des deutschen Stahlbaus
2004  "Best of Europe", besondere Auszeichnung
2003  Deutscher Fassadenpreis