Paul Horn-Arena, Tübingen

Realisiert 2004
Wettbewerb 2002, 1. Preis
Ort: Tübingen
Bauherr: Universitätsstadt Tübingen
Bruttogrundfläche: 6.500 m²
Leistungsphasen: LPH 1–8

Die Tübinger Großsporthalle mit Platz für 3.000 Zuschauer steht für größtmögliche Flexibilität sowie für effiziente Raum- und Nutzungsplanung. Mehrfach und variabel nutzbare Flächen und Räume geben das passende Umfeld für Schul- und Vereinssport ebenso wie für Profi-, Leistungs- und Trendsport.

Maximale Nutzungsqualitäten auf knappem Raum – diese Anforderung führt zur Aktivierung der Fassaden über ihre primäre Funktion als Wetterhaut hinaus: Jede übernimmt eine eigenständige Aufgabe als Kletterwand, als Bühnenbild für Trendsportarten wie Skaten oder Streetball, als Photovoltaik-Anlage sowie als einladende Eingangs- und Galeriefassade mit transparenter Verglasung. Trotz dieser unterschiedlichen Ausprägungen und Wirkungen bilden die Fassaden ein Gestaltkanon aus Materialien und Farben, passend zur Hülle einer großen Sporthalle.

Lageplan
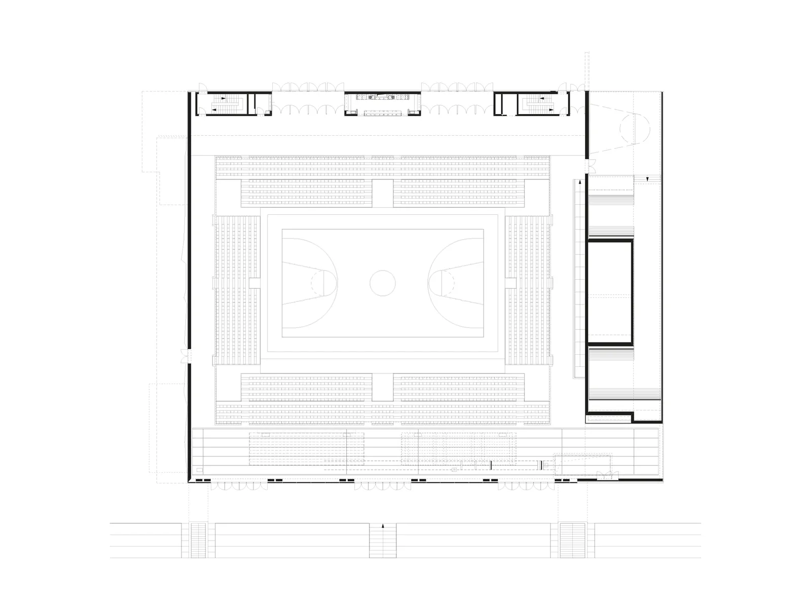
Erdgeschoss
Querschnitt
Längsschnitt

Der Heterogenität in der äußeren Erscheinung wird ein homogener Innenraum entgegengesetzt: ein magentafarbenes, monochromes Futteral für die zentrale Sport- und Veranstaltungsfläche mit einer Umfassung aus rohen Betonwänden. Ein für Sporthallen außergewöhnliches, natürliches Lüftungskonzept ergänzt zusätzlich zur Photovoltaik-Fassade den ganzheitlich nachhaltigen Ansatz des architektonischen Konzepts.

Wettbewerb:

Karlheim, Frank (Projektleitung)
Wagner, Alexandra (Designdirektion)
Bauer, Dirk
Ritter, Olga

Realisierung:

Bauer, Dirk (Projektleitung)
Meusburger, Thomas (Projektleitung)
Bader, Birgit
Hartl, Eva
Homm, Kai
Killius, Christof
Plock, Martin
Rössler, Ulf

Fachplaner:

Werner Sobek Ingenieure, Stuttgart (Tragwerksplanung)
Elwert & Stottele, Ravensburg (Projektsteuerung)
Interplan Gebäudetechnik, Gerlingen (Technische Gebäudeausrüstung)
Kersken & Kirchner, München (Brandschutz)
Horstmann + Berger, Altensteig (Bauphysik)
Transsolar Energietechnik, München (Energieberatung)

Fotografie:

Jens Passoth
Angelo Kaunat
allmannwappner

 

2009  Hugo-Häring Auszeichnung
2008  Gestaltungspreis der Wüstenrot Stiftung "Energieeffiziente Architektur in Deutschland"
2008  Auszeichnung guter Bauten, BDA Baden-Württemberg  
2007  IOC/IAKS Award, Bronzemedaille 
2006  Preis des Deutschen Stahlbaus