Büro- und Geschäftsgebäude Opernplatz, Frankfurt

Wettbewerb 2015
Ort: Frankfurt
Themen: Handel, Büro
Bauherr: Allianz Lebensversicherungen AG
Bruttogrundfläche: 10.155 m²

Der Entwurf für den Neubau am Opernplatz in Frankfurt behauptet sich mit einer eigenständigen Aussage in der besonderen städtebaulichen Situation, die sich aus der Opulenz der historischen „Alten Oper“, der Dominanz der angrenzenden Hochhausarchitektur sowie der Prominenz der Innenstadt-Lage ergibt.

Lageplan

Der Neubau für Büros und Einzelhandel gleicht einem Vexierbild, das je nach Perspektive eine unterschiedliche Massivität vermittelt: Durch die Veränderung von Form und Dimension der Fassadenstützen entsteht der Eindruck, dass diese sich nach unten hin ganz auflösen. Die Fassade erhält einen Ausdruck von Eleganz und Feingliedrigkeit; sie wirkt trotz ihres kräftigen Ausdrucks offen und transparent.

In ihrer Tiefe reagieren die Fassaden jeweils unterschiedlich auf die städtebauliche Situation: Von einer Balkonausprägung zum zentralen Opernplatz hin wandeln sie sich an den Seiten zu einem rein räumlichen Rücksprung. Diese plastische Gestaltung steht in der Tradition historischer Gebäude und führt – in eine zeitgenössische Form übersetzt – einen Dialog zwischen Alt- und Neubau.

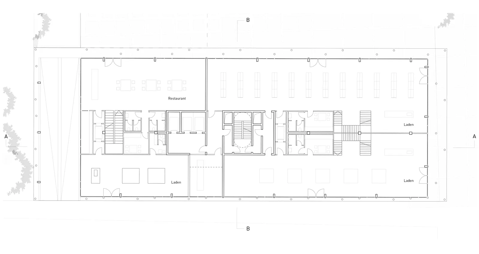
Erdgeschoss
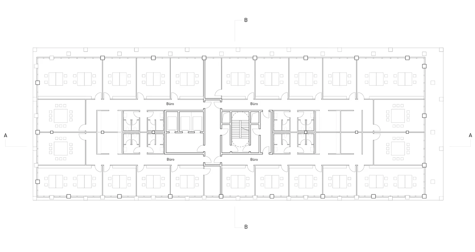
Obergeschoss 07

Die Angleichung der Farbgebung der Betonfertigteile an die „Alte Oper“ unterstützt dieses Prinzip. Transluzente Vorhänge im Außenbereich stellen einen Bezug zur Opernbühne her. Im Dachgeschoss ergibt sich durch die Zurücksetzung des baulichen Volumens eine großzügige vielseitig nutzbare Dachterrasse.

 

Wettbewerb:

Wagner, Alexandra (Leitung)
Shcherbakov, Pavel (Projektleitung)
Kochhan, Simon
Mladenova, Hristina
Selje, David

Fachplaner:

Knippers Helbig Advanced Engineering, Stuttgart (Tragwerksplanung)
Transsolar Energietechnik GmbH, München (Gebäudetechnik)
Matthes Max Modellbau GmbH, München (Modellbau)

Visualisierung:

Artefactorylab, Paris