Büro- und Geschäftsgebäude Sonnenstraße, München

Realisiert 2025
Ort: München
Themen: Handel, Büro
Bauherr: HANSAINVEST Hanseatische Investment-GmbH
Bruttogrundfläche: 18.000 m²
Leistungsphasen: LPH 1–8

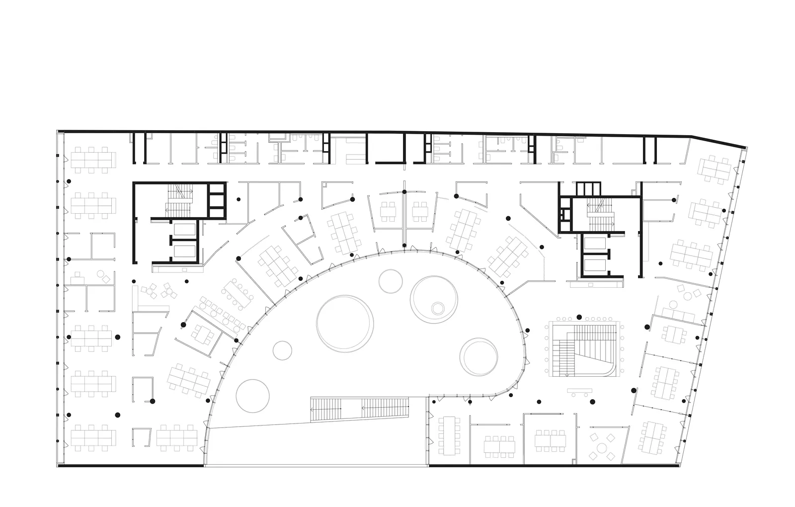
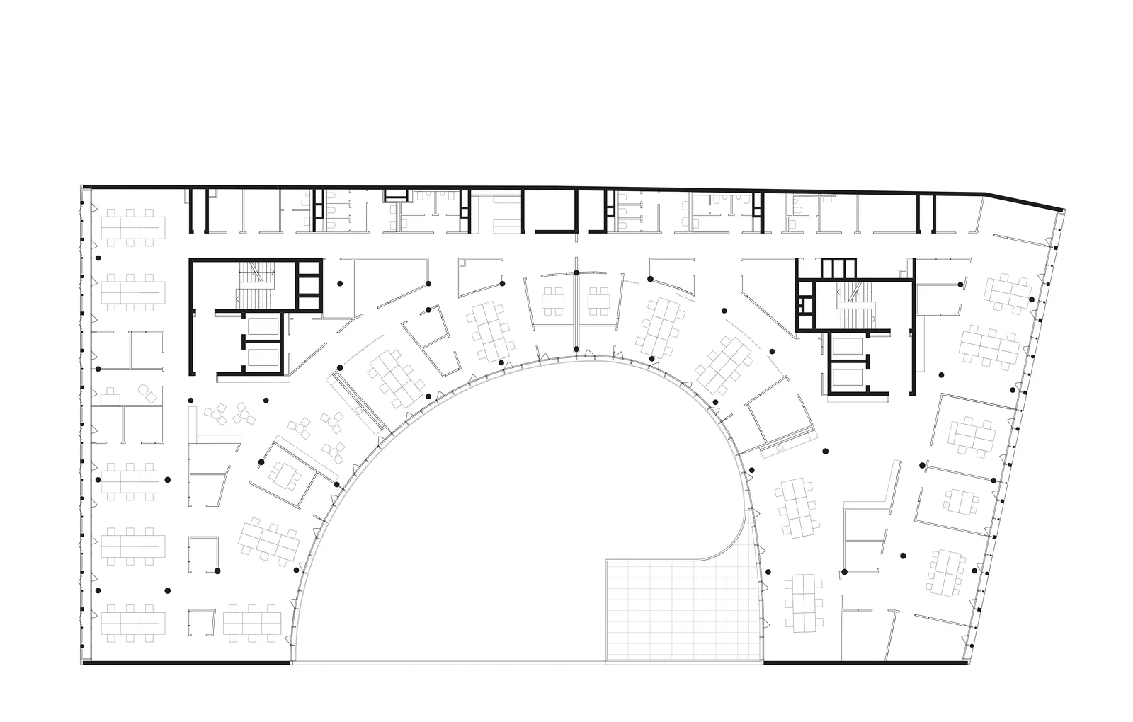
Offenheit, strukturelle Klarheit, eine differenzierte Einordnung in den städtischen Kontext sowie eine symbiotische Verflechtung der Büroeinheiten mit dem Freiraum, sind die prägenden Elemente des architektonischen Konzeptes. Das circa 2400 Quadratmeter große Bebauungsgrundstück liegt direkt in der Münchner Innenstadt, in einer von typischer Architektur der Nachkriegsmoderne geprägten, historisch gewachsenen Stadtstruktur.

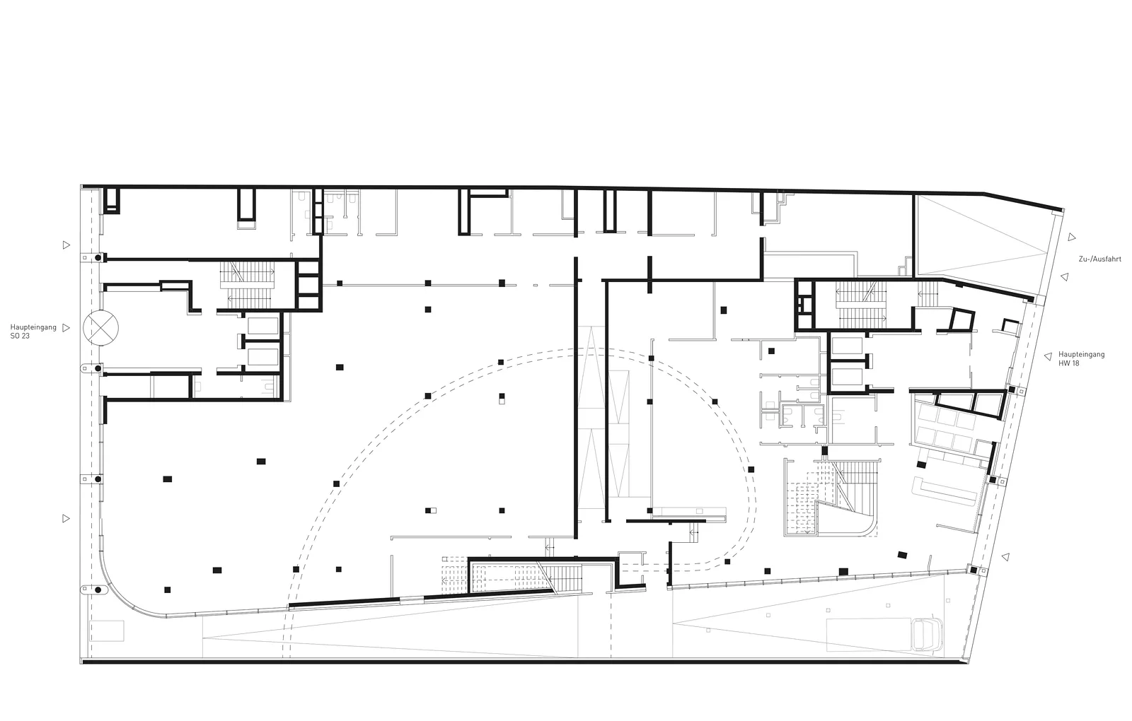
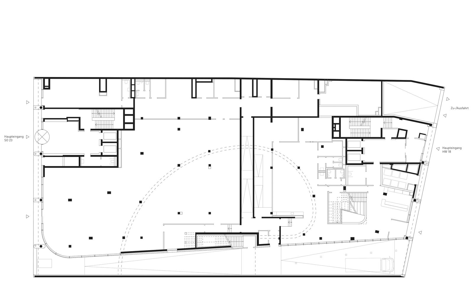
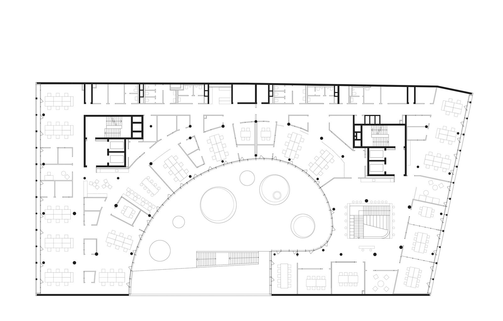
Das Gebäude arrondiert sich als C-förmige Kubatur um den großen Innenhof und sorgt so ganzjährig für eine maximale Ausnutzung des Sonnenlichtes. Für das Klimakonzept wurde der Verlauf der Sonne und die tatsächliche Lichteinstrahlung auf die Fassade genauestens analysiert. Sonnen-, Blendschutz- und Kühlsysteme sorgen für eine angenehme Verschattung und Kühlung der Räume in den Sommermonaten. 

Die äußere Hülle der Fassade kann zur individuellen Lüftung nach außen gefaltet werden. Durch die unterschiedlich weit geöffneten Außenflügel wechselt die Hauptfassade ständig ihr Erscheinungsbild. Diese Vielschichtigkeit wird durch die verwendeten Materialien noch verstärkt. Messingfarbige Metallprofile im zurückgesetzten Erd- und Dachgeschoss sowie in der Fassade des Innenhofes, bilden einen Kontrast zum hellgrauen Beton der Außenhülle des Gebäudes.

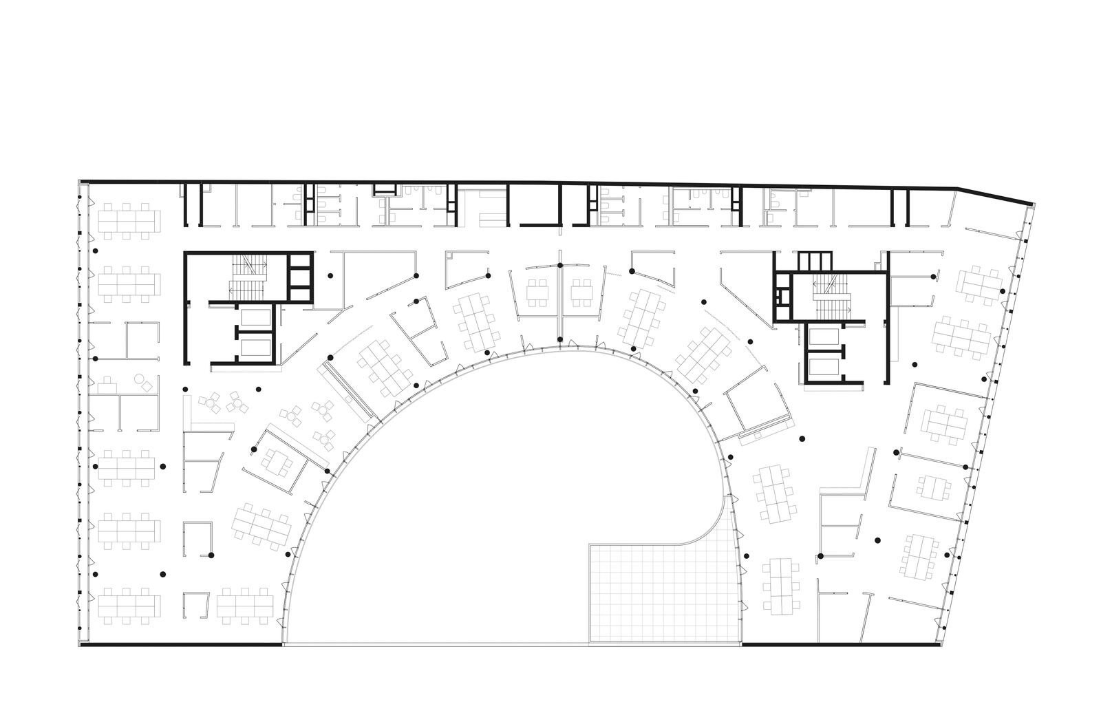
Der Neubau repräsentiert sich offen und einladend. Im Erdgeschoss werden flexibel teilbare Gewerbe- und Gastronomieflächen angeboten. Der attraktiven Lage entsprechend, befinden sich in den Obergeschossen helle und großzügige Büroflächen. Sie sind flexibel bespielbar und ermöglichen sowohl klassische als auch innovative Bürokonzepte. 

Erdgeschoss
Obergeschoss 01
Obergeschoss 04
Obergeschoss 06

Das gesamte Projekt wurde als BIM-Planung (Level2) durchgeführt. Die modellbasierte Arbeitsmethode mit 3D-Visualisierung erhöht die Transparenz, optimiert das Schnittstellenmanagement und verbessert die Kommunikation zwischen den Beteiligten während aller Projektphasen. Über die gesamte Planungs- und Bauzeit wurde die BIM-Gesamtkoordination übernommen, dabei waren neben der Objektplanung die Fachdizipline der Tragwerksplanung sowie der TGA-Teil des BIM-Prozesses.

BIM-Modell

Wettbewerb:

Vogeley, Philipp (Leitung)
Wagner, Alexandra (Designdirektion)
Kochhan, Simon
Reisach, Dominik
Traxler, Timm
Wolf, Nicolas

Realisierung:

Liedgens, Robert (Teamleitung)
Pott, Philipp (Teamleitung)
Hua, Duc (Projektleitung)
Reichenbacher, Heidi (Projektleitung)
Behm, Julia (Projektleitung)
Allmann, Roswitha (Signaletik)
Babkina, Maria
Escolano Bort, Esther
Heene, Karoline
Hong, Juhyuk
Jacob, Inès
Köppl, Simon (Fassadenplanung)
Maasberg, Markus (BIM Koordination)
Pontes, Ángel
Prokop, Marta
Sllovinja, Fjolla
Swietlik, Alexandra
Wiener, Michael (BIM Koordination)

Fachplaner:

Leitwerk AG (Ausschreibung / QS LPH8)
Jühling & Köppel Landschaftsarchitekten GmbH (Freianlagenplanung)
Seeberger Friedl Planungsgesellschaft mbh (Tragwerksplanung)
Suess Staller Schmitt Ingenieure GmbH (Statik)
HL-Technik Engineering GmbH (Techn. Gebäudeausrüstung)
TransSolar Energietechnik GmbH (Energiekonzept)
Kersken + Kirchner GmbH (Brandschutz)
AplusF Fassadenplanung GmbH (Fassadenplanung)
GN Bauphysik Finkenberger + Kollegen Ingenieurgesellschaft mbH (Bauphysik)
Lumen3 Lighting Design (Lichtplanung)
Witte Projektmanagement GmbH (Projektsteuerung)
Leonhard Weiss GmbH & Co. KG Schlüsselbau Süd (Bauausführung)

Fotografie:

Kim Fohmann